2025/09/22 Thông tin sản phẩm Xe nâng người làm việc trên cao
Cho Thuê Xe Nâng Người Chân Nhện
NISHIO vừa nhập khẩu thêm loại Xe Boom Nâng Người Chân Nhện Dạng Boom Cần Gập Bánh Xích có chiều cao làm việc 23m nhằm đáp ứng nhu cầu đa dạng của khách hàng. Loại Xe Nâng Người Chân Nhện này đến từ hãng CTE nổi tiếng của châu Âu, với uy tín và chất lượng hàng đầu trên thế giới.

Xe Nâng Người Chân Nhện 23m tại kho của NISHIO.
目次
- Giải thích về ứng dụng của Xe Nâng Người Chân Nhện
- Thông số kỹ thuật của Xe Nâng Người Chân Nhện 23m CTE TRACCESS 230 NISHIO cho thuê
- Video giới thiệu Xe Nâng Người Chân Nhện 23m Traccess 230
- Ưu điểm của Xe Nâng Người Chân Nhện 23m Traccess 230
- Dịch vụ Cho Thuê Xe Nâng Người Chân Nhện toàn quốc tốt nhất
Giải thích về ứng dụng của Xe Nâng Người Chân Nhện
Xe Nâng Người Chân Nhện được phát triển với mục đích phục vụ cho các công việc ở những nơi không thể sử dụng các loại xe nâng người thông thường như phải đi qua lối ra vào hẹp, nền nhà yếu, mặt đất gồ ghề.
Các công việc thường sử dụng Xe Nâng Người Chân Nhện có thể kể đến:
1. Công trình xây dựng & hoàn thiện
-
Thi công, lắp đặt và bảo trì mặt dựng (façade), cửa kính, ốp nhôm kính.
-
Thi công nội thất tại các sảnh lớn, trung tâm thương mại với trần cao.
-
Lắp đặt và bảo dưỡng hệ thống M&E (ống gió, hệ thống điều hòa, đường ống PCCC).

Hình ảnh: Sử dụng Xe Nâng Người Chân Nhện để thi công trần nhà TTTM.
2. Bảo trì & vệ sinh công nghiệp trong nhà máy, kho bãi, nhà thi đấu, sân vận động, nhà ga, sân bay, trung tâm thương mại…
-
Vệ sinh trần nhà, kính, tường cao,…
-
Bảo trì hệ thống chiếu sáng, camera, cảm biến…

Hình ảnh: Sử dụng Xe Nâng Người Chân Nhện để vệ sinh kính bên ngoài tòa nhà.
3. Điện lực & viễn thông
-
Thi công, bảo dưỡng đường dây điện trung – hạ thế trong khu dân cư hoặc nhà máy.
-
Bảo trì hải đăng, cột đèn chiếu sáng, đèn đường, biển quảng cáo ngoài trời.
-
Lắp đặt và sửa chữa anten, thiết bị truyền dẫn, trạm BTS viễn thông.

Hình ảnh: Sử dụng Xe Nâng Người Chân Nhện để bảo trì ngọn hải đăng.
4. Cây xanh & cảnh quan
-
Cắt tỉa cây xanh đô thị, cây công viên, cây cổ thụ ở vị trí cao.
-
Hỗ trợ công việc chăm sóc cảnh quan trong khu đô thị, khu du lịch, resort.

Hình ảnh: Sử dụng Xe Nâng Người Chân Nhện để cắt tỉa cây cổ thụ.
5. Công trình đặc thù & hạ tầng
-
Phục vụ công tác bảo dưỡng trong hầm, cầu, công trình hạ tầng giao thông.
-
Ứng dụng trong nhà thờ, chùa, công trình văn hóa có kiến trúc cao và phức tạp.
-
Hỗ trợ cứu hộ, cứu nạn trong không gian hạn chế hoặc khu vực khó tiếp cận.

Hình ảnh: Sử dụng Xe Nâng Người Chân Nhện tại các công trình kiến trúc.
6. Hỗ trợ làm phim
- Đối với các cảnh quay trên cao được quay tại những nơi có địa hình hiểm trở mà boom bánh lốp không phù hợp thì có thể sử dụng Xe Nâng Người Chân Nhện Bánh Xích nhờ khả năng di chuyển ổn định, linh hoạt và thăng bằng tốt.
Thông số kỹ thuật của Xe Nâng Người Chân Nhện 23m CTE TRACCESS 230 NISHIO cho thuê

Xe Nâng Người Chân Nhện TRACCESS 230 với chiều cao làm việc lên tới 23m
Hãng | CTE |
Model | TRACCESS 230 |
Chiều cao làm việc tối đa | 23 (m) |
Chiều cao nâng sàn tối đa | 21 (m) |
Tải trọng sàn nâng tối đa | 200 (kg) |
Kích thước giỏ nâng (Dài x Rộng x Cao) | 1,3 x 0,7 x 1,1 (m) |
Trọng lượng máy | 2900 kg |

Hình ảnh: Phạm vi làm việc của Xe Nâng Người Chân Nhện CTE Traccess 230-75

Hình ảnh: Diện tích đặt chân chống của Xe Nâng Người Chân Nhện CTE Traccess 230-75

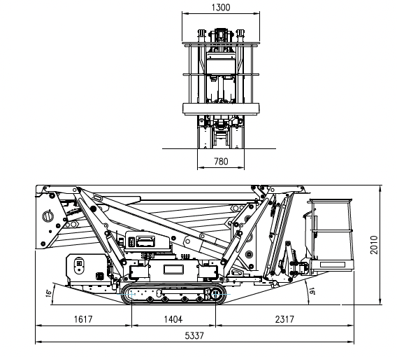
Hình ảnh: Mô tả kích thước của Xe Nâng Người Chân Nhện CTE Traccess 230-75
-
Cần gấp khúc (2 đoạn) + cần lồng trượt (1 cần chính + 2 đoạn mở rộng) + cần phụ (jib)
-
Cơ cấu cần Sigma
-
Tháp quay 360° không liên tục trên bàn xoay bi
-
Điều khiển tỉ lệ điện – thủy lực từ trong giỏ
-
Điều khiển khởi động/tắt động cơ từ giỏ
-
Giỏ nhôm, có thể chọn loại đơn (770 x 700 x 1100 mm) hoặc đôi (1300 x 700 x 1100 mm)
-
Xoay giỏ thủy lực ±90° (trái/phải)
-
Thiết bị cảm biến tải trọng giỏ
-
Bộ điều khiển từ xa không dây
-
Hệ thống truyền động kép, tốc độ tối đa 2 km/h (1.25 mph)
-
Khả năng bố trí chân chống hẹp
-
Bánh xích có thể mở rộng từ 770 mm đến 1270 mm
-
Động cơ điện phụ: 110V – 2.2 kW
-
Hệ thống tự động cân bằng giỏ thủy lực
-
4 chân chống thủy lực có cảm biến áp suất nền
-
Đồng hồ giờ vận hành
-
Ổ cắm 110 V AC EC trong giỏ
-
Màu sơn tiêu chuẩn: Xanh dương (RAL 5017) hoặc Trắng (RAL 9003)
-
Đáp ứng tiêu chuẩn ANSI mới nhất
-
Khả năng leo dốc khoảng 31%
-
Hệ thống lái điện – thủy lực từ mặt đất bằng remote
-
4 khu vực ổn định với bố trí thủy lực
Động cơ
-
Động cơ diesel Kubota
Lưu ý: Các giá trị về tầm với và chiều cao tối đa có thể thay đổi trong khoảng ±3% tùy theo sai số chế tạo và điều kiện làm việc.
Video giới thiệu Xe Nâng Người Chân Nhện 23m Traccess 230
Ưu điểm của Xe Nâng Người Chân Nhện 23m Traccess 230
Ưu điểm thứ nhất: Linh hoạt với 2 chế độ làm việc bằng Điện và Dầu
-
Chạy bằng động cơ đốt trong (dầu) → phù hợp cho ngoài trời, nơi không có điện.
-
Chạy bằng điện (cắm điện 110V) → phù hợp khi làm trong nhà, yêu cầu hạn chế khí thải và tiếng ồn.
Ưu điểm thứ hai: Nhỏ gọn, dễ di chuyển
- Bánh xích giúp xe có thể di chuyển trên các địa hình gồ ghề, khó khăn như khu vực nhiều sỏi đá và cát.
- 4 chân chống với 4 cách đặt chân chống khác nhau (xem video) giúp người sử dụng thuận tiện né tránh các chướng ngại vật trên mặt đất.
- Thu gọn chân chống khi di chuyển tới những nơi chật hẹp, có thể đi vừa các lối đi như cửa ra vào.
Ưu điểm thứ ba: Giỏ nâng linh hoạt, dễ dàng tiếp cận nhiều vị trí.
- Cần phụ với góc làm việc 10° giúp len lỏi vào các nơi khó tiếp cận và vượt chướng ngại vật dễ dàng.
- Giỏ nâng với độ xoay 90°+90° xoay trái phải thuận tiện cho người sử dụng.
Ưu điểm thứ tư: Chiều cao làm việc và tải trọng nâng lý tưởng
- Với độ cao làm việc lên tới 23m và tải trọng nâng 200 kg, Traccess 230 có thể đồng hành trong nhiều công việc đa dạng khác nhau.
Ưu điểm thứ năm: Bảo vệ mặt bằng thi công
- Trọng lượng của Xe Nâng Người Chân Nhện Traccess 230 chỉ 2900 kg – Nhẹ hơn nhiều so với các loại xe boom nâng người khác – Vô cùng phù hợp để sử dụng thi công trong các khu vực có nền đất yếu như bên trong các tòa nhà, TTTM.
Dịch vụ Cho Thuê Xe Nâng Người Chân Nhện toàn quốc tốt nhất
- Giá thuê Xe Nâng Người Chân Nhện vô cùng hợp lý.
- Cho thuê Xe Nâng Người Chân Nhện chỉ từ một ngày.
- Vận chuyển tới mọi tỉnh thành trên cả nước miễn khách hàng có nhu cầu.
- Xe Nâng Người Chân Nhện được kiểm tra an toàn trước khi giao hàng.
- Xe Nâng Người Chân Nhện có đầy đủ giấy tờ kiểm định, bảo hiểm, lý lịch máy.
- Quá trình Cho Thuê Xe Nâng Người Chân Nhện minh bạch, rõ ràng, hợp đồng với công ty kèm hóa đơn và biên bản giao nhận.
- Khi thuê Xe Nâng Người Chân Nhện theo tháng => Kỹ thuật viên của NISHIO sẽ tới bảo dưỡng định kỳ, kiểm tra và sửa chữa bất cứ khi nào xảy ra vấn đề.

Hình ảnh: Các Kỹ Thật Viên của NISHIO đang kiểm tra Xe Nâng Người Chân Nhện CTE Spider Lift Traccess 230
Quý khách có nhu cầu Thuê Xe Nâng Người Chân Nhện của chúng tôi vui lòng liên hệ tới số hotline bên dưới, hoặc để lại thông tin liên hệ tại đây để được hỗ trợ kịp thời.
/ 5. Vote count:
No votes so far! Be the first to rate this post.
Tin tức liên quan